БЕЗ КОМІСІЇ ДЛЯ ПОКУПЦЯ Продаж по переуступці ЖК Фруктова Алея
-
- Квартира
- 2 кімнати
- Сирець
-
- автономне (котельня в будинку)
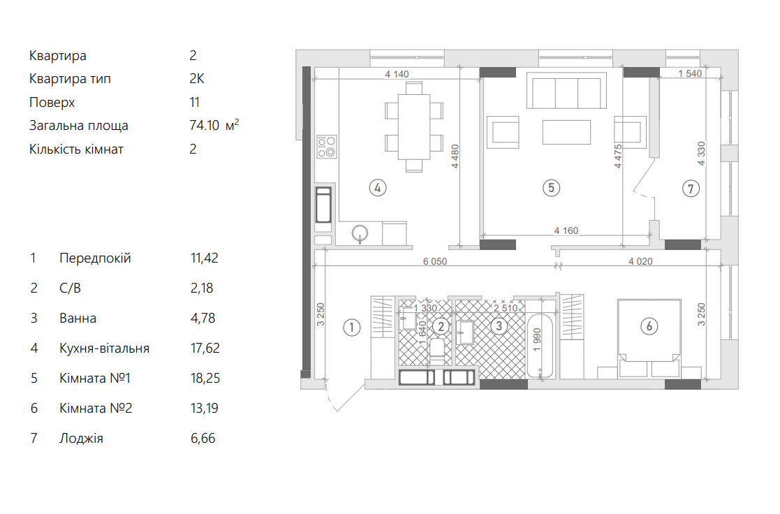
- 11 поверх (16)
- 74 м²
Опис
БЕЗ КОМІСІЇ ДЛЯ ПОКУПЦЯ
Продаж по переуступці ЖК Фруктова Алея
ЖК бізнес класу
Львів, вул. Під Голоском, 4 |
ЄОселя!
Здача на кінець року
Секція А2
Поверх 11 з 16
Загальна площа: 74.10 м²
Планування: кухня-вітальня + 2 окремі кімнати, просторий передпокій, ванна, санвузол, велика
Всі комунікації заведені, встановлюються лічильники на тепло, воду та електрику
Ключові переваги:
Панорамні вікна з виглядом на ліс
6-камерні енергозберігаючі вікна Броньовані вхідні двері
Висота стелі — 2.8 м
Поквартирний ІТП, опалення від дахової котельні
Ідеальний варіант для проживання або під орендний бізнес. Квартира світла, з максимально зручним плануванням та якісною підготовкою під інтер’єрний ремонт.



Дізнатися про об’єкт
Найближчим часом наш менеджер зв’яжеться з Вами!

Схожі пропозиції
Ще 2-кімнатні квартири поблизу